Café & Yoga Studio

The Design

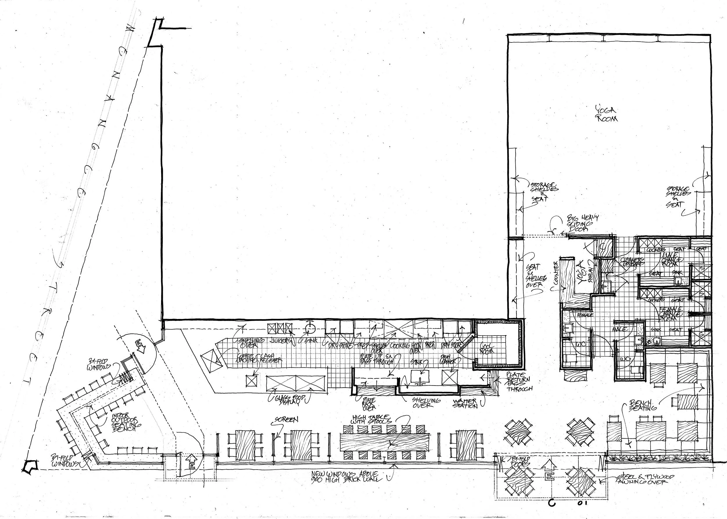
This adaptive reuse project transforms a former Romney Hut into a dual-purpose wellness venue for café and yoga clients. The expressive steel barrel vault guides the architectural language. A dual-entry approach separates the energetic street-facing café from a quieter, canopy-framed arrival. A linear counter and kitchen anchor the rear, while an L-shaped extension accommodates the yoga studio and amenities, zoned for acoustic control. The result is a calm, intentional space fostering ritual and community.

Previous
Previous

Goulburn House

Next
Next

Camden Council Customer Service Centre