Mosman Bathroom Concepts

The Design

Green Line redesigned four bathrooms to enhance function and complement the home’s contemporary architecture and material palette. Design concepts with resolved floor plan, elevations and palette suggestions for the following areas:

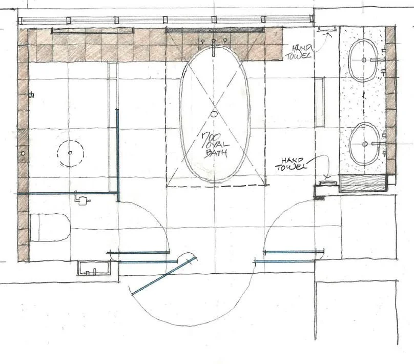
Master Ensuite

Redesigned for improved privacy with an enclosed toilet, floating bath, open walk-in shower, and double vanity. A mix of tile sizes, textures, and colours adds visual interest while reflecting the home’s materials.

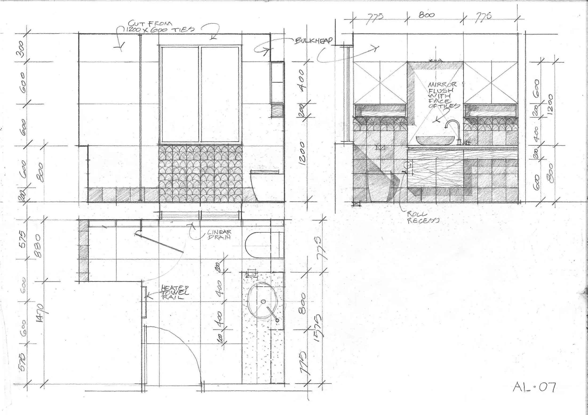
Bathroom 1

Features a separate bath and shower, extended double vanity, and custom joinery precisely aligned with handmade tile proportions. Mosaic tiles ground the bath and vanity areas.

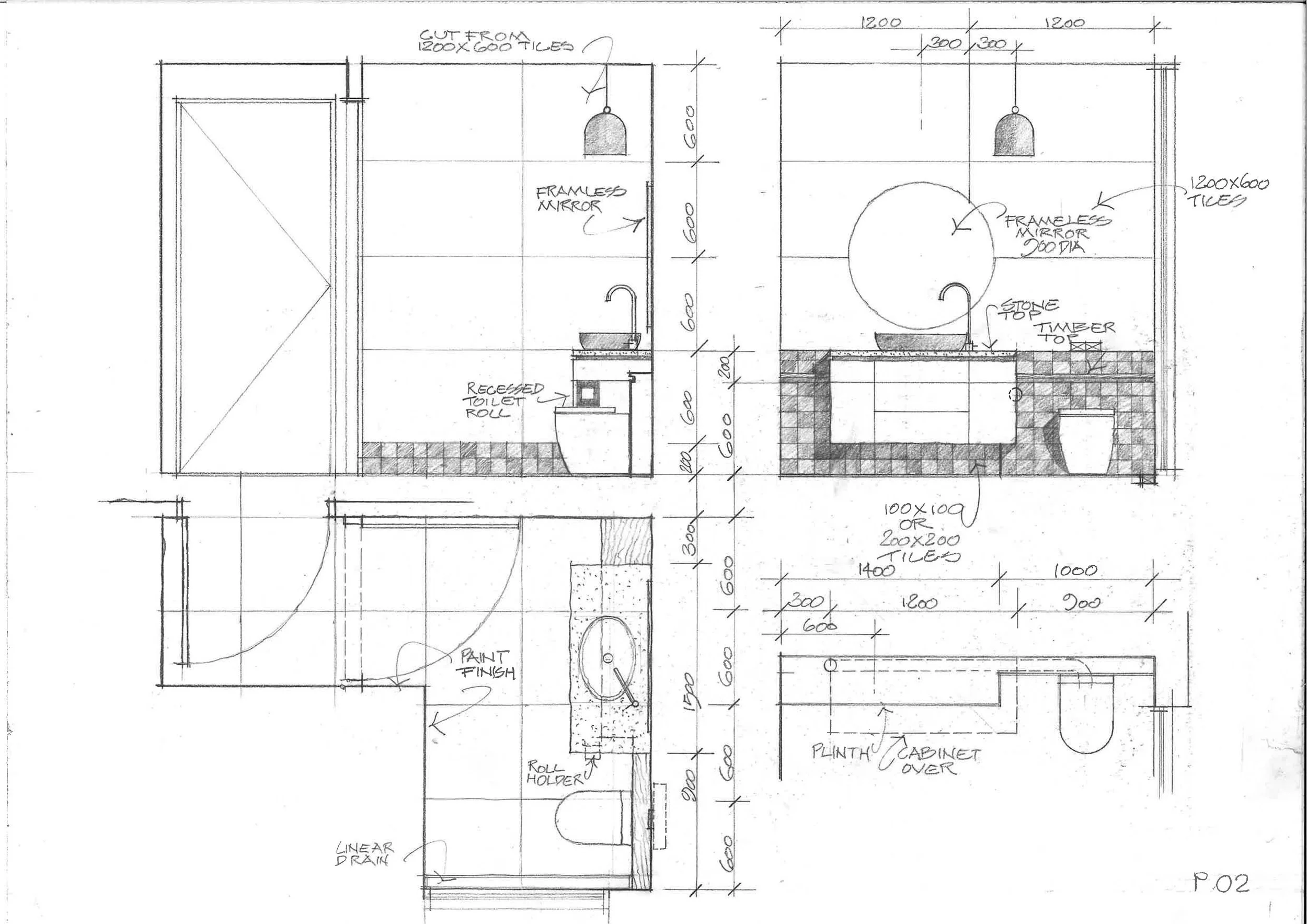
Powder Room

Reconfigured with a cabinet vanity and round mirror. Large-format tiles wrap the walls, paired with handmade tiles below bench height to introduce texture.

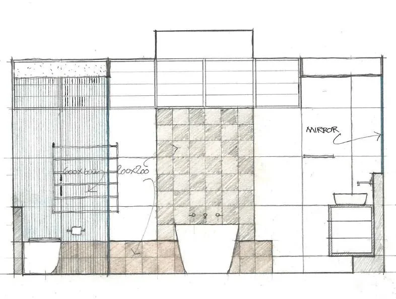
Bathroom 2

A complementary scheme with a single basin, handmade feature tiles below the window, concealed cistern, and full-width slim timber cabinetry for a clean, integrated look.

Previous
Previous

Roseville House

Next
Next

Quamby House